13 товара
5 поставщика
Биогазовая установка

Биогазовая установка

Задача удовлетворения потребностей предприятий и населения аграрного сектора дешевым автономным энергетическим ресурсом и органическими удобрениями, особенно в регионах, удалённых от централизованных энергосетей, а также наличие местных источников сырья для получения топлива, снижение парникового эффекта и экологического ущерба от систем сбора органических отходов и обеспечения экологически замкнутой энергетической системы, приводят к необходимости развития технологии 21 века - биогазовойэнергетики.<br /> Олимпиада в Пекине была на гране срыва из за уровня загазованности&nbsp;&nbsp;воздуха, сегодня Республика Узбекистан с каждым днем укрепляет свои позиции в мировом сообществе, и я уверен что уже сегодня отдается большое внимание экологической ситуации в стране принимающей олимпийские игры, а завтра это может стать решающим фактором также необходимо упомянуть об экологическом туризме который приобретает все большую популярность и все это можно свести к теологически чистому транспорту по численности которого наша страна может и мне кажется должна занимать лидирующие позиции в мире.
0сум
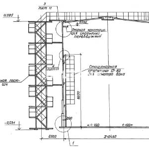
Железобетонный биореактор

Железобетонный биореактор

Опытный образец предложенного биореактора был построен в начале 2010 года на базе ООО «Smart Biogaz» в Бостанлыкского района Ташкентской области и получен биогаз путем переработки птичьего помета птицефермы СП «GOLDEN WING».
0сум
Стальные вертикальные резервуары объемом от 10м3 до 10 000м

Стальные вертикальные резервуары объемом от 10м3 до 10 000м

Резервуары предназначены для хранения нефти, нефтепродуктов и других неагрессивных жидкостей. Для изготовления резервуаров на предприятии в 2009 году внедрена и сертифицирована Система Менеджмента Качества&nbsp;&nbsp;в соответствии с требованиями Международного Стандарта&nbsp;&nbsp;ISO 9001.
0сум
Резервуар РВС

Резервуар РВС

Назначение резервуаров вертикальных стальных РВС - прием, хранение и выдача жидких продуктов.Как правило, вертикальные стальные резервуары используются для хранения:нефти и нефтепродуктов &#40;бензина, дизельного топлива, керосина, мазута&#41;,технических спиртов
0сум
резервуар РГС

резервуар РГС

Резервуары стальные горизонтальные цилиндрические типа РГЦ .  Предназначены для хранения нефти, нефтепродуктов, технической, пожарной и питьевой воды, нефтесодержащих вод, продуктов химической промышленности.
0сум
Стальной резервуар РВС-200 м3 (200 000 литров)

Стальной резервуар РВС-200 м3 (200 000 литров)

Компания Белтанк изготавливает и монтирует резервуары вертикальные стальные 200 м3 &#40;РВС, РВСП, РВСПК&#41; 3 и 4 классов опасности методами рулонирования либо полистовой сборки.<br /> <br /> Характериситки:<br /> <br /> емкость термоизолированная,<br /> облицовка металлопрофиль,<br /> сталь емкости Ст3.<br /> РВС изготавливают из углеродистой низколегированной или нержавеющей стали исходя из требований стандартов ГОСТ 31385, СТО 0048-2005, СТО-СА-03-002-2009?. В зависимости от функционального назначения оснащают термоизоляцией, электро- пароподогревателями; устанавливают дыхательные и предохранительные и др. клапана и арматуру, ПРУ, зумпф очистки, уровнемер.<br /> <br /> Монтаж резервуаров осуществляется в соответствии с проектами ППР, КМ, требованиями ГОСТ31385-2008 после приемки фундамента РВС с оформлением акта.<br /> Текущий контроль качества работ по монтажу и сварке производится в соответствии с технологическими требованиями пунктов ППР и отражается в Журнале операционного контроля.<br /> Из-за больших размеров РВС имеет исключительное значение правильная организация работ и последовательность операций по сборке и сварке, что предотвратит деформацию и коробление основных и вспомогательных конструкций. Опыт сварщиков и монтажников компании Белтанк имеет решающую роль в данном вопросе.<br /> <br /> АКЗ поверхности РВС производится исключительно после этапа абразивоструйной обработки. Профессиональное окрасочное оборудование вкупе с качественными спец.покрытиями всегда дают превосходный результат.<br /> <br /> Компания Белтанк имеет всю необходимую материально-техническую базу для реализации крупных проектов в сжатые сроки.<br /> <br /> Таблица основных технических характеристик стального вертикального резервуара 200 м3<br /> <br /> Объем резервуара, м3 200<br /> Внутренний диаметр бака, мм 6630<br /> Высота стенки, мм 5960<br /> Кол-во поясов, шт 4<br /> Толщина нижнего пояса, мм 5<br /> Толщина верхнего пояса, мм 5<br /> Толщина днища, мм 5<br /> Масса*, тн. 12,986
10 000сум
Стальной резервуар РВС-2000 м3 (2 000 000 литров)

Стальной резервуар РВС-2000 м3 (2 000 000 литров)

Стальной резервуар РВС-2000 м3 &#40;2 000 000 литров&#41;<br /><br /><br /><br />Компания Белтанк изготавливает и монтирует резервуары вертикальные стальные 500 м3 &#40;РВС, РВСП, РВСПК&#41; 3 и 4 классов опасности методами рулонирования либо полистовой сборки.<br /><br />РВС изготавливают из углеродистой низколегированной или нержавеющей стали исходя из требований стандартов ГОСТ 31385, СТО 0048-2005, СТО-СА-03-002-2009?. В зависимости от функционального назначения оснащают термоизоляцией, электро- пароподогревателями; устанавливают дыхательные и предохранительные и др. клапана и&nbsp;&nbsp;арматуру, ПРУ, зумпф очистки, уровнемер.<br /><br /><br /><br />Монтаж резервуаров осуществляется в соответствии с проектами ППР, КМ, требованиями ГОСТ31385-2008 после приемки фундамента РВС с оформлением акта.<br /><br />Текущий контроль качества работ по монтажу и сварке производится в соответствии с технологическими требованиями пунктов ППР и отражается в Журнале операционного контроля.<br /><br />Из-за больших размеров РВС имеет исключительное значение правильная организация работ и последовательность операций по сборке и сварке, что предотвратит деформацию и коробление основных и вспомогательных конструкций. Опыт сварщиков и монтажников компании Белтанк имеет решающую роль в данном вопросе.<br /><br /><br /><br />АКЗ поверхности РВС производится исключительно после этапа абразивоструйной обработки. Профессиональное окрасочное оборудование вкупе с качественными спец.покрытиями всегда дают превосходный результат.<br /><br /><br /><br />Компания Белтанк имеет всю необходимую материально-техническую базу для реализации крупных проектов в сжатые сроки.<br /><br /><br /><br />Таблица основных технических характеристик стального вертикального резервуара 500 м3<br /><br /><br /><br />Объем резервуара, &nbsp;&nbsp;&nbsp;&nbsp;&nbsp;&nbsp;&nbsp;&nbsp;&nbsp;&nbsp;&nbsp;&nbsp;2000м3<br /><br />Внутренний диаметр бака, &nbsp;&nbsp;&nbsp;&nbsp;15180мм<br /><br />Высота стенки, &nbsp;&nbsp;&nbsp;&nbsp;&nbsp;&nbsp;&nbsp;&nbsp;&nbsp;&nbsp;&nbsp;&nbsp;&nbsp;&nbsp;&nbsp;&nbsp;&nbsp;&nbsp;&nbsp;&nbsp;11920мм<br /><br />Кол-во поясов, &nbsp;&nbsp;&nbsp;&nbsp;&nbsp;&nbsp;&nbsp;&nbsp;&nbsp;&nbsp;&nbsp;&nbsp;&nbsp;&nbsp;&nbsp;&nbsp;&nbsp;&nbsp;&nbsp;&nbsp;8шт<br /><br />Толщина нижнего пояса, &nbsp;&nbsp;&nbsp;&nbsp;&nbsp;&nbsp;&nbsp;&nbsp;&nbsp;&nbsp;&nbsp;&nbsp;6мм<br /><br />Толщина верхнего пояса, &nbsp;&nbsp;&nbsp;&nbsp;5мм<br /><br />Толщина днища,&nbsp;&nbsp;&nbsp;&nbsp;&nbsp;&nbsp;&nbsp;&nbsp;&nbsp;&nbsp;&nbsp;&nbsp;&nbsp;&nbsp;5мм<br /><br />Масса*, &nbsp;&nbsp;&nbsp;&nbsp;&nbsp;&nbsp;&nbsp;&nbsp;&nbsp;&nbsp;&nbsp;&nbsp;&nbsp;&nbsp;&nbsp;&nbsp;&nbsp;&nbsp;&nbsp;&nbsp;59,82тн.<br />
10 000сум
Стальной резервуар РВС-20000 м3 (20 000 000 литров)

Стальной резервуар РВС-20000 м3 (20 000 000 литров)

Стальной резервуар РВС-20000 м3 &#40;20 000 000 литров&#41;<br /> Компания Белтанк изготавливает и монтирует резервуары вертикальные стальные 20 000 м3 &#40;РВС, РВСП, РВСПК&#41; 3 и 4 классов опасности методами рулонирования либо полистовой сборки.<br /> РВС изготавливают из углеродистой низколегированной или нержавеющей стали исходя из требований стандартов ГОСТ 31385, СТО 0048-2005, СТО-СА-03-002-2009?. В зависимости от функционального назначения оснащают термоизоляцией, электро- пароподогревателями; устанавливают дыхательные и предохранительные и др. клапана и&nbsp;&nbsp;арматуру, ПРУ, зумпф очистки, уровнемер.<br /> <br /> Монтаж резервуаров осуществляется в соответствии с проектами ППР, КМ, требованиями ГОСТ31385-2008 после приемки фундамента РВС с оформлением акта.<br /> Текущий контроль качества работ по монтажу и сварке производится в соответствии с технологическими требованиями пунктов ППР и отражается в Журнале операционного контроля.<br /> Из-за больших размеров РВС имеет исключительное значение правильная организация работ и последовательность операций по сборке и сварке, что предотвратит деформацию и коробление основных и вспомогательных конструкций. Опыт сварщиков и монтажников компании Белтанк имеет решающую роль в данном вопросе.<br /> <br /> АКЗ поверхности РВС производится исключительно после этапа абразивоструйной обработки. Профессиональное окрасочное оборудование вкупе с качественными спец.покрытиями всегда дают превосходный результат.<br /> <br /> Компания Белтанк имеет всю необходимую материально-техническую базу для реализации крупных проектов в сжатые сроки.<br /> <br /> Таблица основных технических характеристик стального вертикального резервуара 20 000 м3<br /> <br /> ОБЪЕМ,&nbsp;&nbsp;&nbsp;&nbsp;&nbsp;&nbsp;&nbsp;&nbsp;&nbsp;&nbsp;&nbsp;&nbsp;&nbsp;&nbsp;&nbsp;&nbsp;&nbsp;&nbsp;&nbsp;&nbsp;&nbsp;&nbsp;&nbsp;&nbsp;&nbsp;&nbsp;&nbsp;&nbsp;&nbsp;&nbsp;&nbsp;&nbsp; 20000м3<br /> Внутренний диаметр резервуара,&nbsp;&nbsp;39900мм<br /> Высота стенки,&nbsp;&nbsp;&nbsp;&nbsp;&nbsp;&nbsp;&nbsp;&nbsp;&nbsp;&nbsp;&nbsp;&nbsp;&nbsp;&nbsp;&nbsp;&nbsp;&nbsp;&nbsp;18000мм<br /> СТЕНКА <br /> Кол-во поясов,&nbsp;&nbsp;&nbsp;&nbsp;&nbsp;&nbsp;&nbsp;&nbsp;&nbsp;&nbsp;&nbsp;&nbsp;&nbsp;&nbsp;&nbsp;&nbsp;&nbsp;&nbsp;&nbsp;&nbsp;&nbsp;&nbsp;12шт<br /> Толщина верхнего пояса,&nbsp;&nbsp;&nbsp;&nbsp;&nbsp;&nbsp;&nbsp;&nbsp; 12мм<br /> Толщина нижнего пояса,&nbsp;&nbsp;&nbsp;&nbsp;&nbsp;&nbsp;&nbsp;&nbsp;&nbsp;&nbsp;18мм<br /> ДНИЩЕ <br /> Толщина центральной части,&nbsp;&nbsp;&nbsp;&nbsp;&nbsp;&nbsp;&nbsp;&nbsp;5мм<br /> Толщина окраек,&nbsp;&nbsp;&nbsp;&nbsp;&nbsp;&nbsp;&nbsp;&nbsp;&nbsp;&nbsp;&nbsp;&nbsp;&nbsp;&nbsp;&nbsp;&nbsp; 14мм<br /> КРЫША <br /> Толщина настила,&nbsp;&nbsp;&nbsp;&nbsp;&nbsp;&nbsp;&nbsp;&nbsp;&nbsp;&nbsp;&nbsp;&nbsp;&nbsp;&nbsp;&nbsp;&nbsp;&nbsp;&nbsp;&nbsp;&nbsp;5мм<br /> МАССА, КГ <br /> Стенка&nbsp;&nbsp;&nbsp;&nbsp;&nbsp;&nbsp;&nbsp;&nbsp;&nbsp;&nbsp;&nbsp;&nbsp;&nbsp;&nbsp;&nbsp;&nbsp;&nbsp;&nbsp;&nbsp;&nbsp;&nbsp;&nbsp;&nbsp;&nbsp;&nbsp;&nbsp;&nbsp;&nbsp;&nbsp;&nbsp;&nbsp;&nbsp;261 122<br /> Днище&nbsp;&nbsp;&nbsp;&nbsp;&nbsp;&nbsp;&nbsp;&nbsp;&nbsp;&nbsp;&nbsp;&nbsp;&nbsp;&nbsp;&nbsp;&nbsp;&nbsp;&nbsp;&nbsp;&nbsp;&nbsp;&nbsp;&nbsp;&nbsp;&nbsp;&nbsp;&nbsp;&nbsp;&nbsp;&nbsp;&nbsp;&nbsp;62 606<br /> Крыша&nbsp;&nbsp;&nbsp;&nbsp;&nbsp;&nbsp;&nbsp;&nbsp;&nbsp;&nbsp;&nbsp;&nbsp;&nbsp;&nbsp;&nbsp;&nbsp;&nbsp;&nbsp;&nbsp;&nbsp;&nbsp;&nbsp;&nbsp;&nbsp;&nbsp;&nbsp;&nbsp;&nbsp;&nbsp;&nbsp;&nbsp;&nbsp;110 000<br /> Лестница&nbsp;&nbsp;&nbsp;&nbsp;&nbsp;&nbsp;&nbsp;&nbsp;&nbsp;&nbsp;&nbsp;&nbsp;&nbsp;&nbsp;&nbsp;&nbsp;&nbsp;&nbsp;&nbsp;&nbsp;&nbsp;&nbsp;&nbsp;&nbsp;5 100<br /> Площадки на крыше&nbsp;&nbsp;&nbsp;&nbsp;&nbsp;&nbsp;&nbsp;&nbsp;&nbsp;&nbsp;&nbsp;&nbsp;&nbsp;&nbsp;&nbsp;&nbsp;6 642<br /> Комплектующие конструкции&nbsp;&nbsp;&nbsp;&nbsp;&nbsp;&nbsp;&nbsp;&nbsp;5 294<br /> Люки и патрубки&nbsp;&nbsp;&nbsp;&nbsp;&nbsp;&nbsp;&nbsp;&nbsp;&nbsp;&nbsp;&nbsp;&nbsp;&nbsp;&nbsp;&nbsp;&nbsp;&nbsp;&nbsp;&nbsp;&nbsp;&nbsp;&nbsp;&nbsp;&nbsp;3 561<br /> Каркасы и упаковка&nbsp;&nbsp;&nbsp;&nbsp;&nbsp;&nbsp;&nbsp;&nbsp;&nbsp;&nbsp;&nbsp;&nbsp;&nbsp;&nbsp;&nbsp;&nbsp;24 000<br /> Всего&nbsp;&nbsp;&nbsp;&nbsp;&nbsp;&nbsp;&nbsp;&nbsp;&nbsp;&nbsp;&nbsp;&nbsp;&nbsp;&nbsp;&nbsp;&nbsp;&nbsp;&nbsp;&nbsp;&nbsp;&nbsp;&nbsp;&nbsp;&nbsp;&nbsp;&nbsp;&nbsp;&nbsp;&nbsp;&nbsp;&nbsp;&nbsp;477 725
100 000сум
Стальной резервуар РВС-50000 м3 (50 000 000 литров)

Стальной резервуар РВС-50000 м3 (50 000 000 литров)

Стальной резервуар РВС-50000 м3 &#40;50 000 000 литров&#41;<br /> Компания Белтанк изготавливает и монтирует резервуары вертикальные стальные 50 000 м3 &#40;РВС, РВСП, РВСПК&#41; 3 и 4 классов опасности методами рулонирования либо полистовой сборки.<br /> РВС изготавливают из углеродистой низколегированной или нержавеющей стали исходя из требований стандартов ГОСТ 31385, СТО 0048-2005, СТО-СА-03-002-2009?. В зависимости от функционального назначения оснащают термоизоляцией, электро- пароподогревателями; устанавливают дыхательные и предохранительные и др. клапана и&nbsp;&nbsp;арматуру, ПРУ, зумпф очистки, уровнемер.<br /> <br /> Монтаж резервуаров осуществляется в соответствии с проектами ППР, КМ, требованиями ГОСТ31385-2008 после приемки фундамента РВС с оформлением акта.<br /> Текущий контроль качества работ по монтажу и сварке производится в соответствии с технологическими требованиями пунктов ППР и отражается в Журнале операционного контроля.<br /> Из-за больших размеров РВС имеет исключительное значение правильная организация работ и последовательность операций по сборке и сварке, что предотвратит деформацию и коробление основных и вспомогательных конструкций. Опыт сварщиков и монтажников компании Белтанк имеет решающую роль в данном вопросе.<br /> <br /> АКЗ поверхности РВС производится исключительно после этапа абразивоструйной обработки. Профессиональное окрасочное оборудование вкупе с качественными спец.покрытиями всегда дают превосходный результат.<br /> <br /> Компания Белтанк имеет всю необходимую материально-техническую базу для реализации крупных проектов в сжатые сроки.<br /> <br /> Таблица основных технических характеристик стального вертикального резервуара 50 000 м3<br /> <br /> ОБЪЕМ,&nbsp;&nbsp;&nbsp;&nbsp;&nbsp;&nbsp;&nbsp;&nbsp;&nbsp;&nbsp;&nbsp;&nbsp;&nbsp;&nbsp;&nbsp;&nbsp;&nbsp;&nbsp;&nbsp;&nbsp;&nbsp;&nbsp;&nbsp;&nbsp;&nbsp;&nbsp;50 000м3<br /> Внутренний диаметр резервуара,&nbsp;&nbsp; 60 700мм<br /> Высота стенки,&nbsp;&nbsp;&nbsp;&nbsp;&nbsp;&nbsp;&nbsp;&nbsp;&nbsp;&nbsp;&nbsp;&nbsp;&nbsp;&nbsp;&nbsp;&nbsp;&nbsp;&nbsp;&nbsp;&nbsp;&nbsp;&nbsp;&nbsp;&nbsp; 18 000мм<br /> СТЕНКА <br /> Кол-во поясов,&nbsp;&nbsp;&nbsp;&nbsp;&nbsp;&nbsp;&nbsp;&nbsp;&nbsp;&nbsp;&nbsp;&nbsp;&nbsp;&nbsp;&nbsp;&nbsp;&nbsp;&nbsp;&nbsp;&nbsp;&nbsp;&nbsp;&nbsp;&nbsp; 8шт<br /> Толщина верхнего пояса,&nbsp;&nbsp;&nbsp;&nbsp;&nbsp;&nbsp;&nbsp;&nbsp; 11мм<br /> Толщина нижнего пояса,&nbsp;&nbsp;&nbsp;&nbsp;&nbsp;&nbsp;&nbsp;&nbsp;&nbsp;&nbsp; 25мм<br /> ДНИЩЕ <br /> Толщина центральной части,&nbsp;&nbsp;&nbsp;&nbsp;&nbsp;&nbsp;&nbsp;&nbsp;8мм<br /> Толщина окраек,&nbsp;&nbsp;&nbsp;&nbsp;&nbsp;&nbsp;&nbsp;&nbsp;&nbsp;&nbsp;&nbsp;&nbsp;&nbsp;&nbsp;&nbsp;&nbsp; 16мм <br /> КРЫША <br /> Толщина настила,&nbsp;&nbsp;&nbsp;&nbsp;&nbsp;&nbsp;&nbsp;&nbsp;&nbsp;&nbsp;&nbsp;&nbsp;&nbsp;&nbsp;&nbsp;&nbsp; 5мм<br /> МАССА, КГ <br /> Стенка&nbsp;&nbsp;&nbsp;&nbsp;&nbsp;&nbsp;&nbsp;&nbsp;&nbsp;&nbsp;&nbsp;&nbsp;&nbsp;&nbsp;&nbsp;&nbsp;&nbsp;&nbsp;&nbsp;&nbsp;&nbsp;&nbsp;&nbsp;&nbsp;&nbsp;&nbsp;&nbsp;&nbsp;&nbsp;&nbsp;&nbsp;&nbsp;409 480<br /> Днище&nbsp;&nbsp;&nbsp;&nbsp;&nbsp;&nbsp;&nbsp;&nbsp;&nbsp;&nbsp;&nbsp;&nbsp;&nbsp;&nbsp;&nbsp;&nbsp;&nbsp;&nbsp;&nbsp;&nbsp;&nbsp;&nbsp;&nbsp;&nbsp;&nbsp;&nbsp;&nbsp;&nbsp;220 649<br /> Крыша&nbsp;&nbsp;&nbsp;&nbsp;&nbsp;&nbsp;&nbsp;&nbsp;&nbsp;&nbsp;&nbsp;&nbsp;&nbsp;&nbsp;&nbsp;&nbsp;&nbsp;&nbsp;&nbsp;&nbsp;&nbsp;&nbsp;&nbsp;&nbsp;&nbsp;&nbsp;&nbsp;&nbsp;&nbsp;&nbsp;&nbsp;&nbsp;325 047<br /> Лестница&nbsp;&nbsp;&nbsp;&nbsp;&nbsp;&nbsp;&nbsp;&nbsp;&nbsp;&nbsp;&nbsp;&nbsp;&nbsp;&nbsp;&nbsp;&nbsp;&nbsp;&nbsp;&nbsp;&nbsp;&nbsp;&nbsp;&nbsp;&nbsp;20 600<br /> Площадки на крыше&nbsp;&nbsp;&nbsp;&nbsp;&nbsp;&nbsp;&nbsp;&nbsp;&nbsp;&nbsp;&nbsp;&nbsp;&nbsp;&nbsp;&nbsp;&nbsp;10 102<br /> Комплектующие конструкции&nbsp;&nbsp;&nbsp;&nbsp;5 294<br /> Люки и патрубки&nbsp;&nbsp;&nbsp;&nbsp;&nbsp;&nbsp;&nbsp;&nbsp;&nbsp;&nbsp;&nbsp;&nbsp;&nbsp;&nbsp;&nbsp;&nbsp;&nbsp;&nbsp;&nbsp;&nbsp;&nbsp;&nbsp;&nbsp;&nbsp;12 384<br /> Каркасы и упаковка&nbsp;&nbsp;&nbsp;&nbsp;&nbsp;&nbsp;&nbsp;&nbsp;&nbsp;&nbsp;&nbsp;&nbsp;&nbsp;&nbsp;&nbsp;&nbsp;52 800<br /> Всего&nbsp;&nbsp;&nbsp;&nbsp;&nbsp;&nbsp;&nbsp;&nbsp;&nbsp;&nbsp;&nbsp;&nbsp;&nbsp;&nbsp;&nbsp;&nbsp;&nbsp;&nbsp;&nbsp;&nbsp;&nbsp;&nbsp;&nbsp;&nbsp;&nbsp;&nbsp;&nbsp;&nbsp;&nbsp;&nbsp;&nbsp;&nbsp;&nbsp;&nbsp;&nbsp;&nbsp;&nbsp;&nbsp;&nbsp;&nbsp;1 056 356
10 000сум
Стальной резервуар РВС-3000 м3 (3 000 000 литров)

Стальной резервуар РВС-3000 м3 (3 000 000 литров)

Стальной резервуар РВС-3000 м3 &#40;3 000 000 литров&#41;<br /> <br /> Компания Белтанк изготавливает и монтирует резервуары вертикальные стальные 3 000 м3 &#40;РВС, РВСП, РВСПК&#41; 3 и 4 классов опасности методами рулонирования либо полистовой сборки.<br /> РВС изготавливают из углеродистой низколегированной или нержавеющей стали исходя из требований стандартов ГОСТ 31385, СТО 0048-2005, СТО-СА-03-002-2009?. В зависимости от функционального назначения оснащают термоизоляцией, электро- пароподогревателями; устанавливают дыхательные и предохранительные и др. клапана и&nbsp;&nbsp;арматуру, ПРУ, зумпф очистки, уровнемер.<br /> <br /> Монтаж резервуаров осуществляется в соответствии с проектами ППР, КМ, требованиями ГОСТ31385-2008 после приемки фундамента РВС с оформлением акта.<br /> Текущий контроль качества работ по монтажу и сварке производится в соответствии с технологическими требованиями пунктов ППР и отражается в Журнале операционного контроля.<br /> Из-за больших размеров РВС имеет исключительное значение правильная организация работ и последовательность операций по сборке и сварке, что предотвратит деформацию и коробление основных и вспомогательных конструкций. Опыт сварщиков и монтажников компании Белтанк имеет решающую роль в данном вопросе.<br /> <br /> АКЗ поверхности РВС производится исключительно после этапа абразивоструйной обработки. Профессиональное окрасочное оборудование вкупе с качественными спец.покрытиями всегда дают превосходный результат.<br /> <br /> Компания Белтанк имеет всю необходимую материально-техническую базу для реализации крупных проектов в сжатые сроки.<br /> <br /> Таблица основных технических характеристик стального вертикального резервуара 3 000 м3<br /> <br /> Объем резервуара,&nbsp;&nbsp;&nbsp;&nbsp;&nbsp;&nbsp;&nbsp;&nbsp; 3000м3<br /> Внутренний диаметр бака, 18980мм<br /> Высота стенки,&nbsp;&nbsp;&nbsp;&nbsp;&nbsp;&nbsp;&nbsp;&nbsp;&nbsp;&nbsp;11920мм<br /> Кол-во поясов,&nbsp;&nbsp;&nbsp;&nbsp;&nbsp;&nbsp;&nbsp;&nbsp;&nbsp;&nbsp;8шт<br /> Толщина нижнего пояса,&nbsp;&nbsp;8мм<br /> Толщина верхнего пояса, 6мм<br /> Толщина днища,&nbsp;&nbsp;&nbsp;&nbsp;&nbsp;&nbsp;&nbsp;&nbsp;&nbsp;&nbsp;5мм<br /> Масса*,&nbsp;&nbsp;&nbsp;&nbsp;&nbsp;&nbsp;&nbsp;&nbsp;&nbsp;&nbsp;&nbsp;&nbsp;&nbsp;&nbsp;&nbsp;&nbsp;&nbsp;&nbsp;92,18тн.
10 000сум
Стальной резервуар РВС-400 м3 (400 000 литров)

Стальной резервуар РВС-400 м3 (400 000 литров)

Компания Белтанк изготавливает и монтирует резервуары вертикальные стальные 400 м3 &#40;РВС, РВСП, РВСПК&#41; 3 и 4 классов опасности методами рулонирования либо полистовой сборки.<br /> РВС изготавливают из углеродистой низколегированной или нержавеющей стали исходя из требований стандартов ГОСТ 31385, СТО 0048-2005, СТО-СА-03-002-2009?. В зависимости от функционального назначения оснащают термоизоляцией, электро- пароподогревателями; устанавливают дыхательные и предохранительные и др. клапана и арматуру, ПРУ, зумпф очистки, уровнемер.<br /> <br /> Характериситки:<br /> <br /> емкость термоизолированная,<br /> облицовка металлопрофиль,<br /> сталь емкости Ст3.<br /> Монтаж резервуаров осуществляется в соответствии с проектами ППР, КМ, требованиями ГОСТ31385-2008 после приемки фундамента РВС с оформлением акта.<br /> Текущий контроль качества работ по монтажу и сварке производится в соответствии с технологическими требованиями пунктов ППР и отражается в Журнале операционного контроля.<br /> Из-за больших размеров РВС имеет исключительное значение правильная организация работ и последовательность операций по сборке и сварке, что предотвратит деформацию и коробление основных и вспомогательных конструкций. Опыт сварщиков и монтажников компании Белтанк имеет решающую роль в данном вопросе.<br /> <br /> АКЗ поверхности РВС производится исключительно после этапа абразивоструйной обработки. Профессиональное окрасочное оборудование вкупе с качественными спец.покрытиями всегда дают превосходный результат.<br /> <br /> Компания Белтанк имеет всю необходимую материально-техническую базу для реализации крупных проектов в сжатые сроки.<br /> <br /> Таблица основных технических характеристик стального вертикального резервуара 400 м3<br /> <br /> Объем резервуара, м3 400<br /> Внутренний диаметр бака, мм 8530<br /> Высота стенки, мм 7450<br /> Кол-во поясов, шт 4<br /> Толщина нижнего пояса, мм 5<br /> Толщина верхнего пояса, мм 5<br /> Толщина днища, мм 5<br /> Масса*, тн. 18,767
10 000сум
Стальной резервуар РВС-700 м3 (700 000 литров)

Стальной резервуар РВС-700 м3 (700 000 литров)

Компания Белтанк изготавливает и монтирует резервуары вертикальные стальные 700 м3 &#40;РВС, РВСП, РВСПК&#41; 3 и 4 классов опасности методами рулонирования либо полистовой сборки.<br /> РВС изготавливают из углеродистой низколегированной или нержавеющей стали исходя из требований стандартов ГОСТ 31385, СТО 0048-2005, СТО-СА-03-002-2009?. В зависимости от функционального назначения оснащают термоизоляцией, электро- пароподогревателями; устанавливают дыхательные и предохранительные и др. клапана и арматуру, ПРУ, зумпф очистки, уровнемер.<br /> <br /> Монтаж резервуаров осуществляется в соответствии с проектами ППР, КМ, требованиями ГОСТ31385-2008 после приемки фундамента РВС с оформлением акта.<br /> Текущий контроль качества работ по монтажу и сварке производится в соответствии с технологическими требованиями пунктов ППР и отражается в Журнале операционного контроля.<br /> Из-за больших размеров РВС имеет исключительное значение правильная организация работ и последовательность операций по сборке и сварке, что предотвратит деформацию и коробление основных и вспомогательных конструкций. Опыт сварщиков и монтажников компании Белтанк имеет решающую роль в данном вопросе.<br /> <br /> АКЗ поверхности РВС производится исключительно после этапа абразивоструйной обработки. Профессиональное окрасочное оборудование вкупе с качественными спец.покрытиями всегда дают превосходный результат.<br /> <br /> Компания Белтанк имеет всю необходимую материально-техническую базу для реализации крупных проектов в сжатые сроки.<br /> <br /> Таблица основных технических характеристик стального вертикального резервуара 700 м3<br /> <br /> Объем резервуара,&nbsp;&nbsp;&nbsp;&nbsp;&nbsp;&nbsp;&nbsp;&nbsp;&nbsp;&nbsp; 700м3<br /> Внутренний диаметр бака,&nbsp;&nbsp;&nbsp;&nbsp;10430мм<br /> Высота стенки,&nbsp;&nbsp;&nbsp;&nbsp;&nbsp;&nbsp;&nbsp;&nbsp;&nbsp;&nbsp;&nbsp;&nbsp;&nbsp;&nbsp;9005мм<br /> Кол-во поясов,&nbsp;&nbsp;&nbsp;&nbsp;&nbsp;&nbsp;&nbsp;&nbsp;&nbsp;&nbsp;&nbsp;&nbsp;&nbsp;&nbsp;6шт<br /> Толщина нижнего пояса,&nbsp;&nbsp;&nbsp;&nbsp;&nbsp;&nbsp;5мм<br /> Толщина верхнего пояса,&nbsp;&nbsp;&nbsp;&nbsp; 5мм<br /> Толщина днища,&nbsp;&nbsp;&nbsp;&nbsp;&nbsp;&nbsp;&nbsp;&nbsp;&nbsp;&nbsp;&nbsp;&nbsp;&nbsp;&nbsp;5мм <br /> Масса*,&nbsp;&nbsp;&nbsp;&nbsp;&nbsp;&nbsp;&nbsp;&nbsp;&nbsp;&nbsp;&nbsp;&nbsp;&nbsp;&nbsp;&nbsp;&nbsp;&nbsp;&nbsp;&nbsp;&nbsp; 26,73тн.
10 000сум
Люк чугунный тяжелый с крышкой типо “Т” канализационный

Люк чугунный тяжелый с крышкой типо “Т” канализационный

Люк чугунный тяжелый с крышкой типо “Т” канализационный.&nbsp;&nbsp;Диаметр крышки 600 мм,&nbsp;&nbsp;Диаметр кольца 800 мм. Вес люка 120 кг, Общая высота с крышкой 100 мм.&nbsp;&nbsp;&nbsp;&nbsp; Грузоподъемность&nbsp;&nbsp;до 30 тонн.&nbsp;&nbsp; Чугунный люк Т &#40;С250&#41;-1-58 является канализационным люком тяжелого<br /> <br /> <br /> Подробную информацию о товаре просим уточнять у продавца, связавшись с ним по указанному выше телефону или посредством электронного запроса через форму обратной связи.
0сум